Проект «Матур» — современный двухэтажный дом в стиле барнхаус (ФОТО)

Любите красоту во всем? Тогда проект «Матур» — ваш вариант. Современный двухэтажный дом в стиле барнхаус с панорамными окнами — мечта модника. Однако внешняя оболочка проекта не уступает его внутреннему миру.
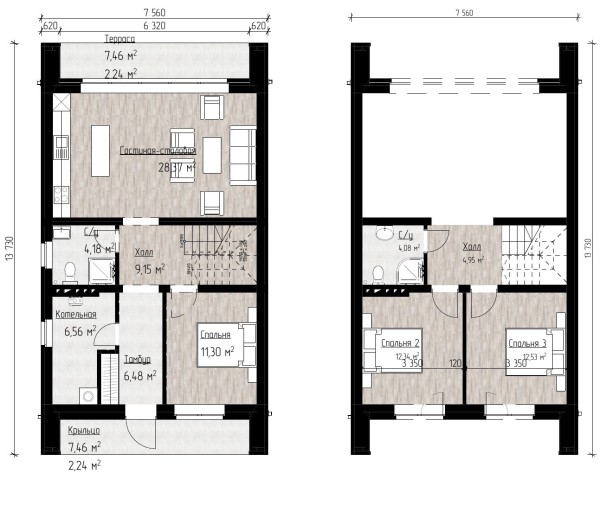
Дом, общей площадью 115 м², сумел вместить в себе несколько просторных комнат:
— большая и светлая гостиная-столовая
— 2 санузла
— спальня на 1-м этаже
— 2 спальни на 2-м этаже
— котельная




Комментарии закрыты.